|
||||||
| 種目 | 所在地 | 土地面積 建物面積 |
構造 間取 |
築年月 引渡時期 |
土地権利 | |
|---|---|---|---|---|---|---|
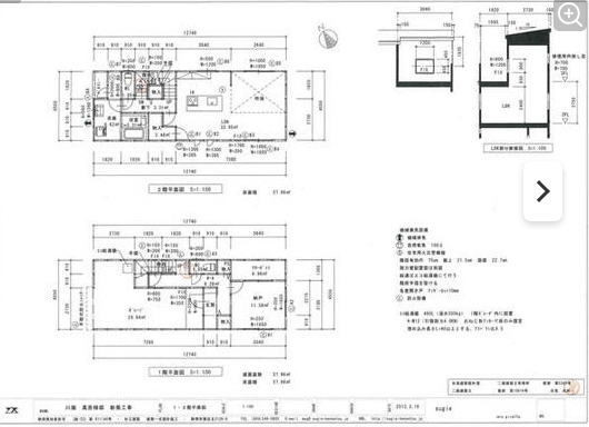
| 中古戸建 | 静岡市葵区駒形通4丁目 | 30.99坪 42.08坪 |
木造 1SLDK |
H25/09 令和08年08月下旬 |
所有権 | |
南東向き
| 物件番号 | Bk7387 | |||||||||||||||||
|---|---|---|---|---|---|---|---|---|---|---|---|---|---|---|---|---|---|---|
| 交通 | 東海道本線 静岡駅まで 徒歩21分 | 学区 | 小学校区:駒形小学校 中学校区:安倍川中学校 |
|||||||||||||||
| 土地面積 | 102.47m2 | 建物面積 | 139.11m2 | |||||||||||||||
| 建ぺい率 | 80% | 容積率 | 300% | |||||||||||||||
| 地目 | 宅地 | 用途地域 | 近隣商業地域 | |||||||||||||||
| 間取 | 1SLDK | 間取詳細 | ||||||||||||||||
| 取引態様 | 一般媒介 | 私道面積 | ||||||||||||||||
| 接道 | 北西 6m(幅員) 公道 5.5m(接面) | |||||||||||||||||
| 特色 | ||||||||||||||||||
|
ローンを組むにあたり、月々の返済額をシミュレーションします。
|
||||||||||||||||||
※掲載されている物件データが現状と異なる場合は現状を優先します
![]()
- 長崎不動産株式会社
- TEL:054-340-5060
- FAX:054-346-3038




