|
||||||
| 種目 | 所在地 | 土地面積 建物面積 |
構造 間取 |
築年月 引渡時期 |
土地権利 | |
|---|---|---|---|---|---|---|
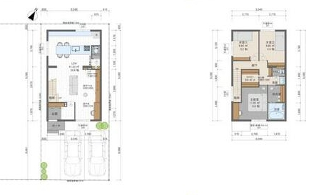
| 未入居住宅 | 静岡市葵区川合2丁目 | 33.87坪 31.1坪 |
プレキャストコンクリート造 3SLDK |
R05/10 相談 |
所有権 | |
オール電化、天井高2.5m以上、閑静な住宅街、分譲地内、全居室フローリング、全居室エアコン、インターネット対応
| 物件番号 | Bk7272 | |||||||||||||||||
|---|---|---|---|---|---|---|---|---|---|---|---|---|---|---|---|---|---|---|
| 交通 | 静岡鉄道静岡清水線 古庄駅まで 徒歩22分 | 学区 | 小学校区:千代田東小学校 中学校区:観山中学校 |
|||||||||||||||
| 土地面積 | 111.97m2 | 建物面積 | 102.82m2 | |||||||||||||||
| 建ぺい率 | 60% | 容積率 | 200% | |||||||||||||||
| 地目 | 宅地 | 用途地域 | 第二種中高層住居専用地域 | |||||||||||||||
| 間取 | 3SLDK | 間取詳細 | ||||||||||||||||
| 取引態様 | 一般媒介 | 私道面積 | ||||||||||||||||
| 接道 | 西 5m(幅員) 公道 2m(接面) | |||||||||||||||||
| 特色 | 公営水道、公共本下水、電気、駐車、外壁コンクリート | |||||||||||||||||
|
ローンを組むにあたり、月々の返済額をシミュレーションします。
|
||||||||||||||||||
※掲載されている物件データが現状と異なる場合は現状を優先します
![]()
- 長崎不動産株式会社
- TEL:054-340-5060
- FAX:054-346-3038



